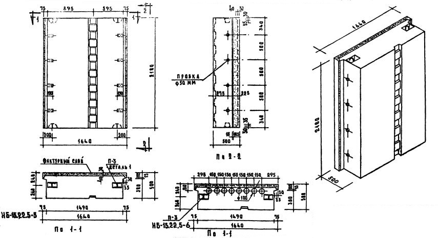
НБ-15.22.5-6

Чертеж изделия:
Чертеж НБ-15.22.5-6
Характеристики изделия:
ПараметрЗначение
Длина1640 мм
Ширина500 мм
Высота2180 мм
Масса2965 мм
Нормативный документСерия 1.133-1

Стеновые легкобетонные блоки толщиной 50 см по Серии 1.133-1.

НБ-15.22.5-6   Простеночный блок.